| Paino | 20,58 kg (kilogramma) |
|---|---|
| Mitat | 600 × 7 × 6 cm (senttimetri) |
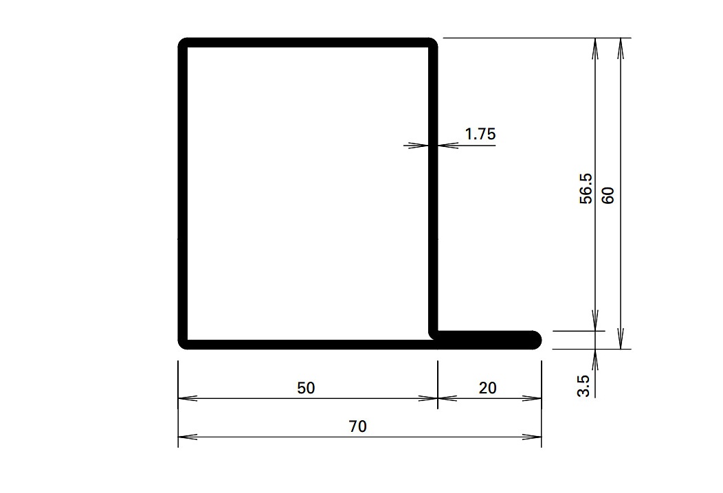
60×50 oviprofiili
158,88 €
Ei varastossa, vain jälkitoimituksena
Määräalennus
Määräalennukset koskevat vain täysimittaisia tuotteita.
Alennettu hinta lasketaan ostoskorissa.
| Minimiostos | Alennus (%) |
|---|---|
| 300 kg (15 kpl) | 5% |
| 500 kg (25 kpl) | 10% |
| 1000 kg (49 kpl) | 15% |
Tuotetiedot
Lisätiedot
Tilaustuote. Toimitusaika-arvio 1-2 vko.
Yksihuulinen oviprofiili, L-profiili. Profiilin L-huulen korkeus: n. 20 mm
Katkaisun toleranssi +2 cm, eli jos tilaat 2 metrisiä pätkiä, niin pituus voi olla 200-202 cm.
Purku asiakkaan toimesta.
Mikäli tarvitset nosturiautopurun, saat sen valittua ostoskorissa.
Varastollamme myös paljon muita rautoja ja teräksiä.
Asiakaspalvelumme auttaa, mikäli et löydä tarvitsemaasi tuotetta.
Osasto: Oviprofiilit
Avainsanat tuotteelle l-profiili, Oviprofiili
Tutustu myös
-
150x50x5 L-profiili S235
99,00 € / kpl -
200x100x12 Kulmateräs S235JR
262,40 € / kpl -
150x100x10 Kulmateräs S235
182,40 € / kpl -
40x20x3 Alumiinikulmatanko aw6060
22,56 € / kpl





